Одноэтажный дом 88 кв м в КП РяДом

РяДом
Этажей
1
Площадь
88 м²

Индивидуальный одноэтажный дом из керамзитобетона со свободной планировкой, с окнами в пол. Участок 4-7 соток.

  • Фундамент: забивные ж/б сваи с монолитным ростверком;
  • Стены: керамзитобетонные блоки с утеплением;
  • Окна: ПВХ профиль, двухкамерный стеклопакет;
  • Кровля: металлочерепица Каскад;
  • Отделка фасада: декоративная фактурная штукатурка;
  • Забор по периметру: профлист / штакетник.
  • Центральное водоснабжение;
  • Канализация;
  • Электричество 1-15 кВт;
  • Интернет;
  • Газ вдоль участка.
  • Подключение газа;
  • Водосточная система и снегозадержатели для кровли;
  • Устройство брусчатки на отмостку, дорожки;
  • Распашные или откатные ворота на фасадный забор из штакетника.

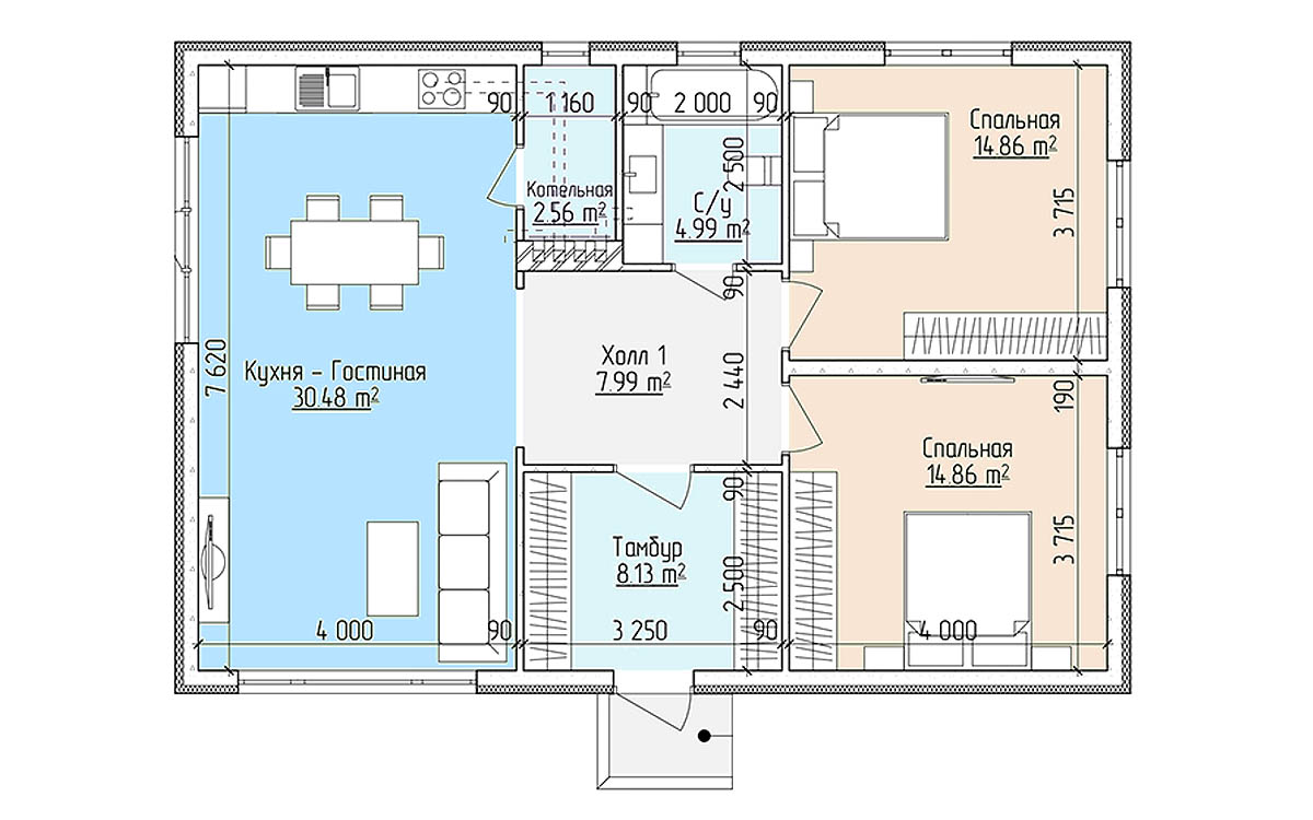
Планировка дома 88 м²

Другие проекты домов в КП РяДом

Коттеджи 90 кв.м в других посёлках