Двухэтажный дом 108 кв м в КП ЛесМой

Индивидуальный двухэтажный дом из газобетонного блока (1й этаж + мансардный), ЖБИ перекрытия, со свободной планировкой. Участок на выбор от 5 соток.

  • Фундамент: забивные ж/б сваи с монолитным ростверком;
  • Стены: газобетонные блоки;
  • Окна: ПВХ профиль, двухкамерный стеклопакет;
  • Кровля: металлочерепица;
  • Отделка фасада: декоративная фактурная штукатурка;
  • Забор по периметру: профлист / штакетник.
  • Центральное водоснабжение;
  • Канализация - ЛОС;
  • Электричество 1-15 кВт;
  • Интернет;
  • Газ вдоль участка.
  • Подключение газа;
  • Водосточная система и снегозадержатели для кровли;
  • Устройство брусчатки на отмостку, дорожки;
  • Распашные или откатные ворота на фасадный забор из штакетника;
  • Кирпичные столбы на фасадный забор с отделкой фасадной штукатуркой, металлическими колпаками и светильниками;
  • Обустройство террасы.

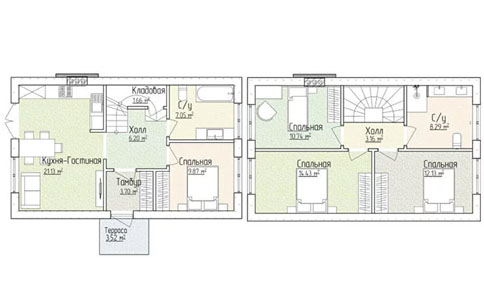
Планировка дома 108 м²

Способы оплаты

Первоначальный взнос
 - 
руб.
Ежемесячный платеж
 - 
руб.
Наличие недвижимости

Другие проекты домов в КП ЛесМой

Коттеджи 110 кв.м в других посёлках

Запишитесь на просмотр

Укажите свои контакты и менеджер свяжется с вами, чтобы уточнить удобное время просмотра.