Дом 105 м2 в КП Фэмили Парк

Двухэтажный дом для семьи с детьми из газобетонного блока. Свободная планировка. Участок 6-14 соток.

  • Фундамент: забивные ж/б сваи с монолитным ростверком;
  • Стены: газобетонные блоки 350 мм;
  • Перекрытия: железобетонные;
  • Окна: ПВХ профиль, двухкамерный стеклопакет;
  • Кровля: металлочерепица со снегозадержателями и водосточной системой;
  • Отделка фасада: декоративная штукатурка + планкен + декоративные элементы отделки;
  • Забор по периметру: профлист / штакетник.
  • Центральное водоснабжение;
  • Канализация - септик;
  • Электричество 1-15 кВт;
  • Интернет;
  • Газ вдоль участка.
  • Подключение газа;
  • Устройство брусчатки на отмостку, дорожки;
  • Распашные или откатные ворота на фасадный забор из штакетника;
  • Обустройство террасы.

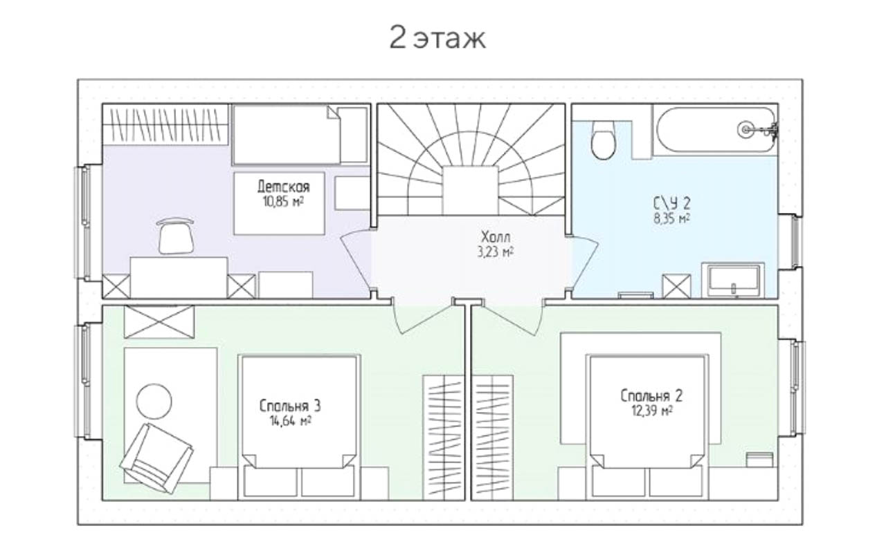
Планировка дома 105 м²

Способы оплаты

Первоначальный взнос
 - 
руб.
Ежемесячный платеж
 - 
руб.
Наличие недвижимости

Другие проекты домов в КП Фэмили Парк

Коттеджи 100 кв.м в других посёлках

Запишитесь на просмотр

Укажите свои контакты и менеджер свяжется с вами, чтобы уточнить удобное время просмотра.