Проект дома на две семьи, таунхаус, дуплекс 65 кв м, 1 этаж в КП ЭКОПАРК

ЭКОПАРК
Этажей
1
Площадь
65 м²
Размер
10,19 х 14,59 м

Капитальный дом на 2 семьи (дуплекс, таунхаус) для постоянного проживания. У каждой семьи отдельный вход на своем участке. Дуплекс является экономным вариантом коттеджа, так как цена и коммунальные платежи ниже, чем у индивидуального дома. Участок 4-5 соток.

  • Фундамент: забивные ж/б сваи с монолитным ростверком;
  • Стены: керамзитобетонные блоки с утеплением;
  • Окна: ПВХ профиль, двухкамерный стеклопакет;
  • Кровля: металлочерепица;
  • Отделка фасада: декоративная штукатурка;
  • Забор по периметру: профлист / штакетник.
  • Центральное водоснабжение;
  • Индивидуальная канализация;
  • Электричество до 15 кВт;
  • Интернет;
  • Газ вдоль участка.
  • Подключение газа;
  • Водосточная система и снегозадержатели для кровли;
  • Устройство брусчатки на отмостку, дорожка до границы участка;
  • Посадка сосен;
  • Строительство гаража на участке;
  • Строительство бани на участке;
  • Распашные или откатные ворота на фасадный забор из штакетника.

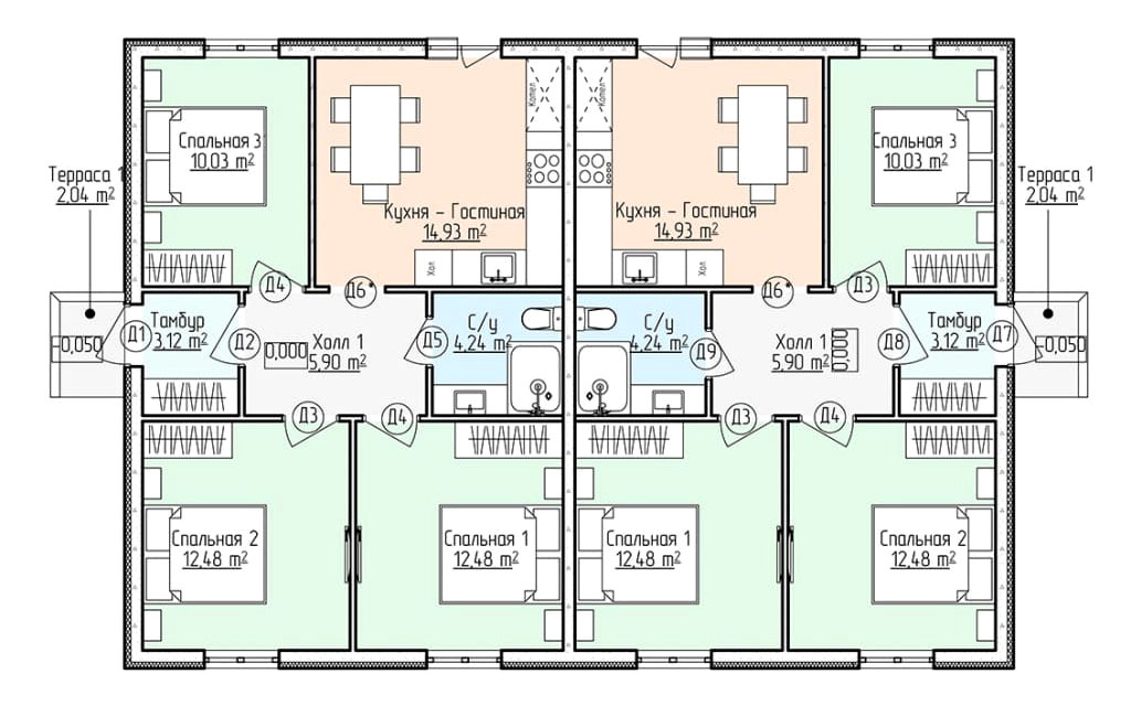
Планировка дома 65 м²

Способы оплаты

Первоначальный взнос
 - 
руб.
Ежемесячный платеж
 - 
руб.
Наличие недвижимости

Другие проекты домов в КП ЭКОПАРК

Коттеджи 60 кв.м в других посёлках

Запишитесь на просмотр

Укажите свои контакты и менеджер свяжется с вами, чтобы уточнить удобное время просмотра.